Котел 1200 кВт с водяными колосниками в Орле
Цена котла с водяными колосниками 1200 кВт в Орле 862 000 рублей
Модель эффективно работает даже на низкокалорийных углях
Полное догорание топлива в топке без перегрева и прогорания колосников
Быстрый выход на номинальную мощность - 2-4 часа
Запас по мощности 15 %, сверх номинальной
Подходит для размещения в маленьких котельных
Работает с вентилятором и дымососом
Дутье и тяга регулируются шиберами, поставляются в комплекте с котлом
Труба сталь 10 повышенной прочности устойчива к коррозии, обеспечивает высокую теплопроводность
Отапливаемая площадь помещения от 10000 до 13100 м2, отапливаемый объем от 30000 до 39200 м3.
Температура до 115 градусов.
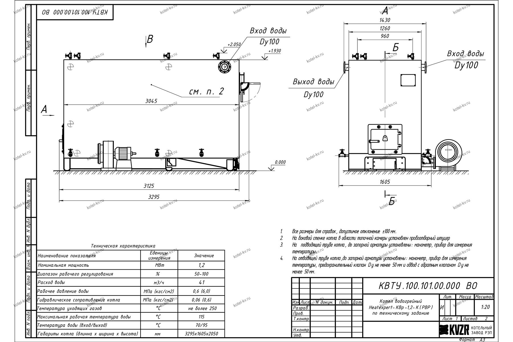
| Марка котла | Котел КВр, Котел малой мощности | Водяной объем котла, л | 850 |
|---|---|---|---|
| Вид топки | Топка ОУР | Объем топочной камеры, м³ | 2.46 |
| Бренд | HeatExpert | Размер топочной камеры, длина*ширина*высота, мм | 1705х960х1500 |
| Максимальная тепловая мощность, МВт | 1.2 | Активная площадь решетки горения, м² | 1.64 |
| Максимальная тепловая мощность, кВт | 1200 | Присоединительные размеры по водяному тракту, Ду | 100 |
| Максимальная тепловая мощность, Гкал | 1.03 | Присоединительные размеры газохода уходящих газов, ширина*высота / сечение, мм/м² | 600х300/0.18 |
| Диапазон регулирования, % | 50-100 | Габаритные размеры котельного блока, длина*ширина*высота, мм | 3250х1600х2150 |
| Топливо | Уголь, Твердотопливный | Масса, кг | 2800 |
| Низшая теплота сгорания топлива УГОЛЬ, кКал/кг | 5230 | Тип котла | Водогрейный, Промышленный |
| КПД (УГОЛЬ), не менее, % | 82 | Тип отопительного котла | Твердотопливный |
| Расход топлива среднечасовой за отопительный сезон, кг/ч | 137.1 | Количество контуров | Одноконтурный |
| Расход топлива при максимальной нагрузке котла (УГОЛЬ), кг/ч | 240 | Размещение | Напольный |
| Расход условного топлива, кг/ч | 179 | Тип камеры сгорания | Открытый |
| Температура воды, °C | 70-95, 90-115 | Управление | Электронное |
| Давление рабочей среды, МПа (кгс/cм²) | 0.3-0.6 | Принцип работы твердотопливного котла | Классический |
| Расход теплоносителя среды, м³/ч | 41 | Энергонезависимый | нет |
| Гидравлическое сопротивление при перепаде t, МПа (кгс/cм²) | Не более 0.07 (0.7) | Тип питания | Трехфазное |
| Аэродинамическое сопротивление, Па (мм. вод. ст.) | 245 | Встроенный циркуляционный насос | нет |
| Разряжение в топочной камере, Па (мм. вод. ст.) | 20-40 | Встроенный расширительный бак | нет |
| Расход уходящих газов, м³/ч | 3900 | Отапливаемая площадь, м² | 10000-13100 |
| Температура уходящих газов, °C | 250 | Отапливаемый объем, м³ | 30000-39200 |
| Тяга | Уравновешенная | Энергоэффективность | Высокая |
Это устройство работает со вспомогательным оборудованием, которое приобретается отдельно. Если вы хотите сразу узнать стоимость всей установки, добавьте заинтересовавшие вас позиции в корзину. Чтобы точно расчитать стоимость доставки до вашего объекта, укажите его адрес в корзине и оправьте нам заявку. Обычно мы отвечаем в течение дня.
Котел с водяными колосниками
Котел с ОУР конструкция
Котел с охлаждаемой решеткой изготовление
Теплоизоляция котла с водяной решеткой
Обмуровка котла с уголковой решеткой
Производство котлов с водоохлаждаемыми колосниками
Твердотопливный котел с водяными колосниками 1200 кВт в Орле
Котел с водяными колосниками 1200 кВт применяются для отопления и горячего водоснабжения жилых и административных зданий, производственных предприятий, промышленных помещений, цехов, заводов, складов, ангаров, теплиц, школ, садов, гаражей, устанавливается в стационарных и модульных котельных.
Основные характеристики
- мощность 1200 кВт, 1,2 МВт, 1,03 ГКал;
- максимальная температура 115 °С;
- давление не более 0,6 МПа;
- топливо – каменный и бурый уголь;
- отапливаемый объем от 30000 до 39200 м3 (в зависимости максимальной температуры в регионе эксплуатации). Проверить или подобрать мощность котла с водяными колосниками в Орле или другом городе вы можете по ссылке.
Конструкция котла
Котел с водяными колосниками 1200 кВт состоит из котельного блока и топочного устройства.
Котельный блок состоит из опорной рамы, каркаса, теплоизоляции и обшивки, трубной системы включающей радиационную и конвективную поверхности.
Радиационная поверхность нагрева образуется потолочным и боковыми экранами, располагающимися в топочной камере, где происходит горение топлива. Топочные экраны исключают потери тепла в окружающую среду и предохраняют котел 1200 кВт с ОУР от выгорания.
Конвективная поверхность нагрева выполнена из параллельно установленных в шахматном порядке сварных панелей из труб. Такая компоновка труб исключает образование застойных зон со слабой циркуляцией теплоносителя, что способствует большей теплоотдаче и износостойкости.
Каркас котла 1200 кВт с охлаждаемыми колосниками изготавливается из профильной трубы, уголка и швеллера. Тепловая изоляция состоит из плиты ПТЭ. Наружная обшивка котла выполнена из полимерного оцинкованного листа. Для очистки конвективных секций в обмуровке предусмотрены съёмные люки.
Котел 1200 кВт с охлаждаемой уголковой решеткой изготавливается с ручной подачей топлива.
Устройство и описание топки
Топка твердотопливного котла с водяными колосниками 1200 кВт предназначена для сжигания каменного и бурого угля, дров.
Водяные колосники – это ряд труб, расположенных внизу топки, на которых выкладывается и сжигается топливо. С котлом они выполняются единым моноблоком. Долговечность такой конструкции обеспечивает постоянно циркулирующая вода внутри труб, поступающая из системы отопления. Вода в трубах охлаждает конструкцию изнутри, обеспечивает защиту от перегрева и прогорания, тем самым увеличивая срок службы.
Водяные колосники являются хорошим дополнением теплообменника, повышая эффективность теплосъема на 10 – 15%, тем самым увеличивая КПД котла с водоохлаждаемой решеткой.
Водоохлаждаемая колосниковая решетка изготавливается из цельнотянутых труб, что обеспечивает их надежность при повышении давления в случае аварийной ситуации.
Между трубами топки вварены полосы металла с отверстиями для подачи воздуха в слой топлива. Топливо в топке прогорает полностью, поскольку маленькие отверстия в полосе не дают провалиться в зольник недогоревшему топливу.
Котел с охлаждаемой решеткой 1200 кВт принцип работы
Уголь сгорает в топочной камере котла. Горячие газы омывают трубную систему и нагревают воду. Максимальная температура воды в котле 115 градусов.
Циркуляция воды в агрегате производится циркуляционным насосом. Для восполнения теплоносителя, теряемого при дренировании и в теплосети, производится подпитка подпиточным насосом.
Для горения угля вентилятором в короб подается воздух, через отверстия в водоохлаждаемых колосниках поступает в топку. Образующиеся зола и шлак выгребаются в котельный зал, через топочную дверку. Горячие дымовые газы проходят трубную систему котельного блока и поступают в газоходы котельной. В газоходах может устанавливаться золоуловитель ЗУ-1.1. Для преодоления сопротивления газоходов и золоуловителя перед дымовой трубой монтируется дымосос ДН 6,3. Далее газы через дымовую трубу поступают в атмосферу. Для безопасности агрегата устанавливается предохранительный клапан.
Котел с водяной решеткой 1200 кВт должен быть укомплектован автоматикой. Заводская автоматика ограничивает предельно допустимые параметры работы, температуру и давление воды, минимальный расход теплоносителя, поддерживает минимально допустимое разряжение.
Водно-химический режим водогрейного котла должен быть организован в соответствии с требованиями руководства по эксплуатации и нормативной литературы по тепловым энергоустановкам и тепловым сетям. Для подбора водоподготовительной установки требуется провести химический анализ воды.
Котел с уголковой решеткой 1200 кВт и все необходимое котельно-вспомогательное оборудование для его подключения вы можете купить на нашем котельном заводе в Орле.
Подключение и монтаж
Котел с водоохлаждаемыми колосниками 1200 кВт поставляется блоками максимальной заводской готовности. Агрегат устанавливается в котельной на специально подготовленную ровную поверхность и закрепляется анкерными болтами. Далее установка подсоединяется по воде, устанавливается запорная арматура на подводящем и отводящем трубопроводе, устанавливаются предохранительные клапаны, дренажи и воздушники и контрольно измерительные приборы. В воздушный короб по месту врезается вентилятор, монтируется газоход. Подключается котельная автоматика.
Купить котел с водяными колосниками 1200 кВт
Для того чтобы купить котел 1200 кВт с ОУР в Орле, вы можете сделать заявку в отдел сбыта по телефону 8 (800) 551-70-98, либо оформить заявку через наш сайт. Наши менеджеры дадут консультацию по подбору вспомогательного оборудования для выбранных вами моделей и рассчитают стоимость доставки оборудования до вашего региона и населенного пункта. Также предлагаем вам выполнить проект реконструкции котельной.
Чертежи котла с водяными колосниками 1200 кВт
Купить котел 1200 квт с водяными колосниками в Орле
Промышленный водогрейный котел с водяными колосниками 1200 кВт применяется для отопления и горячего водоснабжения жилых и административных зданий, производственных предприятий, промышленных помещений, цехов, заводов, складов, ангаров, теплиц, школ, садов, гаражей, устанавливается в стационарных и модульных котельных. Используемое топливо - каменный и бурый уголь, дрова, температура воды 115 градусов.
Предлагаем вам подобрать мощность водогрейного промышленного котла по отапливаемой площади и объему, с учетом типа строения и данных о температуре в регионе и в Орле, вида топлива.
Выбор водогрейного котла для котельной производится по каталогу отопительного оборудования нашего Котельного завода с помощью калькулятора подбора мощности. Водогрейные котлы отопления для промышленных предприятий предлагается выбрать из модельного ряда газовых, дизельных, мазутных, твердотопливных угольных и дровяных котлов, с ручными и автоматическими топками мощностью от 150 кВ до 4 МВт, и температурой нагрева теплоносителя до 115 градусов.
Подбор мощности водогрейного промышленного котла для отопления учитывает:
- температуру в самую холодную пятидневку в отопительный сезон. Для каждого региона РФ температура различна, данные берутся из СП 131.13330 «Строительная климатология»;
- тепло, необходимое для возмещения потерь тепла через ограждения, окна, двери здания и тепловые потери через не плотности строения и открываемые двери;
- температуру воздуха внутри помещений. Для различных типов и назначений строений она существенно отличается:
| Тип отапливаемого строения | Температура внутри помещения |
|---|---|
| Жилые строения и административные здания | + 20 С° |
| Больницы, детские сады | + 22 С° |
| Учебные заведения, предприятия общепита, учреждения культуры, школы | + 16 С° |
| Магазины и депо | + 15 С° |
| Кинотеатры | + 14 С° |
| Гаражи | + 10 С° |
| Бани | + 25 С° |
- объем строения. Для определения наружного объема строения площадь по наружным стенкам строения на уровне первого этажа перемножается на высоту. Для панельных домов высота определяется: от уровня пола (нулевой отметки) до верхней плоскости теплоизоляционного слоя чердачного покрытия. Для остальных зданий высота определяется от уровня земли. Подбор мощности для отопления различных по назначению строений считается отдельно. Все полученные значения мощности складываются.
Подбор мощности водогрейного промышленного котла производится для общей суммарной мощности каждого отдельно стоящего задания.
Если вам требуется подобрать мощность котла в Орле для котельной с учетом вентиляции здания, горячего водоснабжения объекта, потерь в теплотрассе - необходимо производить более подробный расчет. Данный расчет мы можем произвести для вас бесплатно. Отправьте опросный лист и заявку на электронный адрес sale@kotel-kv.ru или позвоните по телефону 8 (800) 551-70-98.